Rustico in vendita

Altivole, Via Lovigioni - San Vito
€ 119.000
9 locali 9 locali
614 Mq 614 Mq
1 bagno 1 bagno

Rustico in vendita

Altivole, Via Lovigioni - San Vito

Descrizione annuncio

ESCLUSIVA DI VENDITA - SAN VITO DI ALTIVOLE

Proponiamo in esclusiva una casa semindipendente con accesso privato e ampio giardino di proprietà, situata in una posizione strategica, vicina ai servizi principali. L'abitazione, disposta su tre livelli, necessita di una ristrutturazione completa, offrendo così un'ottima opportunità per chi desidera personalizzare gli spazi secondo i propri gusti e necessità.

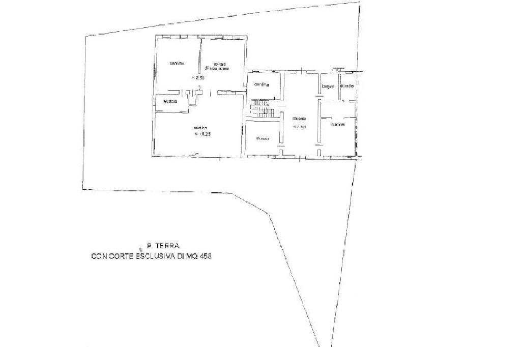
Piano terra: cucina separata dal soggiorno, bagno con vasca, cantina e stireria.
Primo piano: cinque ampie camere matrimoniali con un corridoio spazioso.
Ultimo piano: splendida mansarda di 132,25 mq con travi a vista, ideale per creare un'ulteriore zona abitativa.

All'esterno completano la proprietà due magazzini e un garage coperto con almeno due posti auto. Il tutto è circondato da un ampio giardino privato, perfetto per chi desidera tranquillità e spazi verdi, senza rinunciare alla comodità di avere negozi, scuole e servizi a pochi passi.

Un'ottima opportunità per chi cerca una casa da ristrutturare e rendere unica!

Per maggiori informazioni o per fissare una visita:
Chiama il 0423 1855950
Manda un messaggio WhatsApp al 331 8861986

Mostra tutto

Nelle vicinanze

Trasporto pubblico Trasporto pubblico
Trasporto pubblico
1,6 Km
Scuole Scuole
Scuole Elementari e Materne
150 m
Scuole
1,8 Km
Scuola elementare Madonnina del Grappa
2,6 Km
Scuola elementare Margherita Sarto Sanson
3,0 Km
Farmacia Farmacia
Farmacia San Vito
250 m
Supermercati Supermercati
Crai
150 m
Quali
1,8 Km
Maxì Supermercati
2,5 Km
Negozi Negozi
Negozi
1,8 Km
Panificio Pasticceria Antelmi
2,9 Km
Bar Bar
Fascion Cafè
310 m
Bin Cafè
370 m
Principe in bicicletta
440 m
Punta del Este
660 m
Company
2,6 Km
Ristoranti Ristoranti
Senza Tempo
80 m
Pizzeria Rocca d'Asolo
710 m
Trattoria Croce d'Oro
1,0 Km
Agriturismo da Gino
1,7 Km
Da Valerio
2,1 Km
Mostra tutto

Caratteristiche

Rif.:
61033908
Piano:
2 di 3 (Piano su più livelli)
Box:
1
Posti auto:
2
Camere da letto:
5
Arredamento:
Parziale
Mostra tutto
Prezzo Prezzo
€ 119.000
Rata mutuo Rata mutuo
€ 561 / mese
Spese annue Spese annue
€ 0
Proponi il tuo prezzoProponi il tuo prezzo

Classe Energetica

G
G
G
G
G
G
G
G
G
EP globale non rinnovabile:
194.50 kW h/m² anno
EP globale rinnovabile:
194.50 kW h/m² anno
EP invernale del fabbricato:
EP estiva del fabbricato:
Anno di costruzione:
1700
Riscaldamento:
Autonomo
Tipo impianto:
A stufa
Tipo alimentazione:
Gasolio

Ti interessa visionare l'immobile?

Fissa un appuntamento  Fissa un appuntamento

Richiedi informazioni

Clicca su Leggi per aprire l'informativa
* Questi campi sono obbligatori

Calcola il tuo mutuo

Semplice e senza impegno
Anticipo

( % )
Mutuo

( % )

pochi semplici passi

inserisci i tuoi dati
Questionario completato
Grazie per aver richiesto un appuntamento senza impegno con un nostro Consulente del Credito e Assicurativo.

Hai inserito correttamente tutti i dati necessari e a breve riceverai una e-mail con un link da convalidare per inviare i tuoi dati.
Affiliato
Studio Asolo Srl
Via Montello, 6 31011 Asolo (TV)

Il nostro staff


  • Andreanicole Bizzotto
    Affiliata

  • Edoardo Maria Cunzo
    Responsabile

  • Joslin Cassol
    Coordinatrice
Via Montello, 6 31011 Asolo (TV)
Zona: Asolo
Mostra su mappa
Orari: lunedì - venerdì 8.30/12.30 - 14.30/19.30. Sabato 8.30/12.30.
Affiliato
Studio Asolo Srl
Via Montello, 6 31011 Asolo (TV)

2025 Tecnocasa Franchising S.p.A. - P. IVA 08365160152 - Via Monte Bianco 60/A 20089 Rozzano (MI). Ogni agenzia ha un proprio titolare ed è autonoma. Privacy policy | Policy utilizzo | Cookie policy