Trilocale in vendita

Asolo, Via montello - Casella D'Asolo
€ 220.000
3 locali 3 locali
100 Mq 100 Mq
2 bagni 2 bagni

Trilocale in vendita

Asolo, Via montello - Casella D'Asolo

Descrizione annuncio

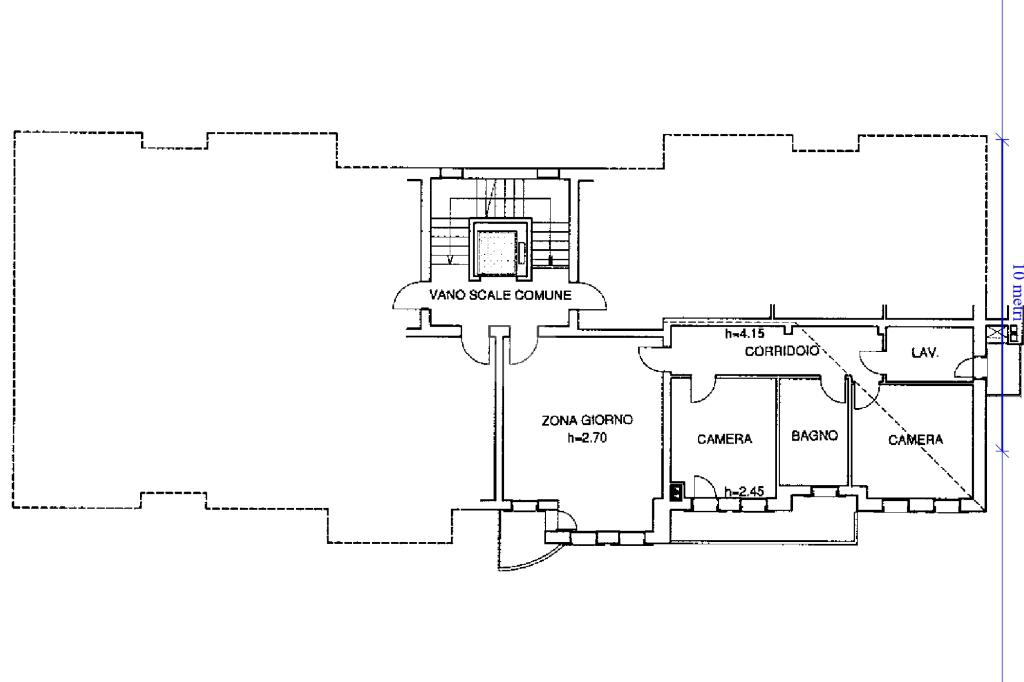
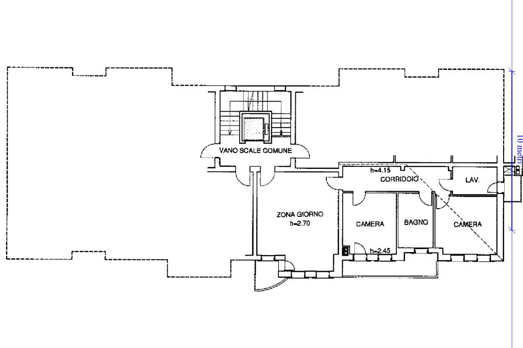
Appartamento bicamere all’ultimo piano con ascensore – Casella d’Asolo

In tranquilla zona residenziale di Casella d’Asolo proponiamo in vendita appartamento bicamere situato all’ultimo piano di una palazzina di sole 12 unità, edificata nei primi anni 2000 e dotata di ascensore.

L’immobile, di circa 100 mq, si presenta allo stato originale ma ben mantenuto ed è valorizzato dalla travatura a vista che rende gli ambienti caldi e accoglienti. La zona giorno è composta da un luminoso open space con cucina e soggiorno, con accesso a un comodo balconcino. La zona notte si sviluppa con una camera matrimoniale e una camera singola con accesso a un terrazzo abitabile.

L’appartamento dispone inoltre di un bagno finestrato completo di vasca e doccia e di una pratica lavanderia separata con ulteriore balconcino. È presente l’aria condizionata con due split, uno per la zona giorno e uno per la zona notte.

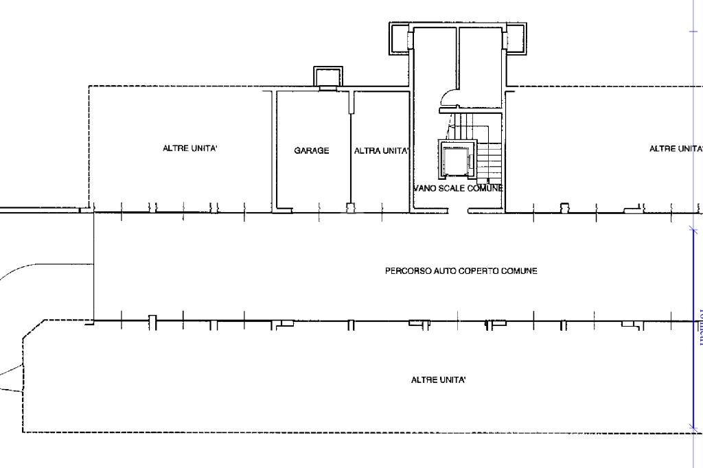
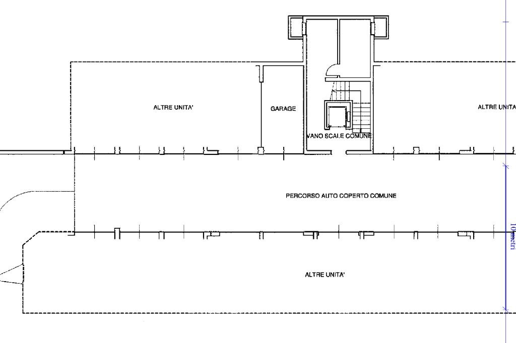
Al piano interrato completano la proprietà due garage, uno di 23 mq e un secondo di 18 mq. Il riscaldamento è autonomo con caldaia a metano e l’immobile è regolarmente allacciato alla rete fognaria. Viene venduto arredato ed è libero da subito.

Soluzione ideale per chi cerca tranquillità, spazi ben distribuiti e un contesto residenziale curato.

Per maggiori informazioni:
Telefono: 0423 1855950
WhatsApp: 331 8861986

Mostra tutto

Nelle vicinanze

Trasporto pubblico Trasporto pubblico
Trasporto pubblico
910 m
Fermata Asolo
Fermata Asolo
1,2 Km
Ricariche auto elettriche Ricariche auto elettriche
Asolo Giorgione | Enelx
110 m
Asolo Piazzale Ca'vescovo | EnelX
950 m
Asolo Forestuzzo | EnelX
1,1 Km
Scuole Scuole
Scuola primaria città d'Asolo
700 m
Scuole
780 m
Istituto comprensivo Asolo Torretti
800 m
Scuola Elementare di Asolo
1,1 Km
Farmacia Farmacia
Parafarmacia-Sanitaria
170 m
Farmacia Tonini Sergio
550 m
Farmacia Bonotto Massimo
1,5 Km
Ospedali Ospedali
Ospedale di Asolo - ULSS 2 Marca Trevigiana
1,0 Km
Supermercati Supermercati
IN'S
130 m
Conad
500 m
Gastronomia da Ennio
1,4 Km
Crai
1,4 Km
Quali
2,5 Km
Negozi Negozi
Negro
180 m
Natura Bio
380 m
Toffolo
1,3 Km
Negozi
2,6 Km
Spaccio Commerciale
2,7 Km
Bar Bar
Mirco Bar
80 m
Toto bar
180 m
Bin Cafè
250 m
Bar Posta
280 m
Cafè Manin
340 m
Ristoranti Ristoranti
Pizzeria ai 4 gatti
60 m
Trattoria da Angelo
80 m
Ristorante Villa Razzoli Loredan
550 m
Ristorante il Ciliegio
1,1 Km
Al Morer
1,2 Km
Mostra tutto

Caratteristiche

Rif.:
61192977
Piano:
3 di 3 con ascensore (Piano alto)
Box:
2
Balconi:
2
Terrazzi:
1
Camere da letto:
2
Mostra tutto
Prezzo Prezzo
€ 220.000
Rata mutuo Rata mutuo
€ 1.044 / mese
Spese annue Spese annue
€ 300
Proponi il tuo prezzoProponi il tuo prezzo

Classe Energetica

C
C
C
C
C
C
C
C
C
EP globale non rinnovabile:
0.00 kW h/m² anno
EP globale rinnovabile:
0.00 kW h/m² anno
EP invernale del fabbricato:
EP estiva del fabbricato:
Anno di costruzione:
2001
Riscaldamento:
Autonomo
Tipo impianto:
A radiatori
Tipo alimentazione:
Metano

Ti interessa visionare l'immobile?

Fissa un appuntamento  Fissa un appuntamento

Richiedi informazioni

Clicca su Leggi per aprire l'informativa
* Questi campi sono obbligatori

Calcola il tuo mutuo

Semplice e senza impegno
Anticipo

( % )
Mutuo

( % )

pochi semplici passi

inserisci i tuoi dati
Questionario completato
Grazie per aver richiesto un appuntamento senza impegno con un nostro Consulente del Credito e Assicurativo.

Hai inserito correttamente tutti i dati necessari e a breve riceverai una e-mail con un link da convalidare per inviare i tuoi dati.
Affiliato
Studio Asolo Srl
Via Montello, 6 31011 Asolo (TV)

Il nostro staff


  • Andreanicole Bizzotto
    Affiliata

  • Edoardo Maria Cunzo
    Responsabile

  • Joslin Cassol
    Coordinatrice
Via Montello, 6 31011 Asolo (TV)
Zona: Asolo
Mostra su mappa
Orari: lunedì - venerdì 8.30/12.30 - 14.30/19.30. Sabato 8.30/12.30.
Affiliato
Studio Asolo Srl
Via Montello, 6 31011 Asolo (TV)

2026 Tecnocasa Franchising S.p.A. - P. IVA 08365160152 - Via Monte Bianco 60/A 20089 Rozzano (MI). Ogni agenzia ha un proprio titolare ed è autonoma. Privacy policy | Policy utilizzo | Cookie policy