Villa singola in vendita

Asolo, Via della Sega - Villa D'Asolo
€ 600.000
7 locali 7 locali
401 Mq 401 Mq
2 bagni 2 bagni

Villa singola in vendita

Asolo, Via della Sega - Villa D'Asolo

Descrizione annuncio

Tecnocasa Asolo propone in esclusiva una prestigiosa villa singola nel cuore del Comune di Asolo.

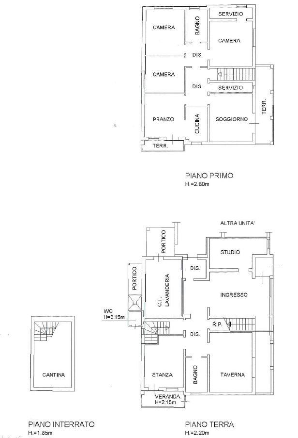
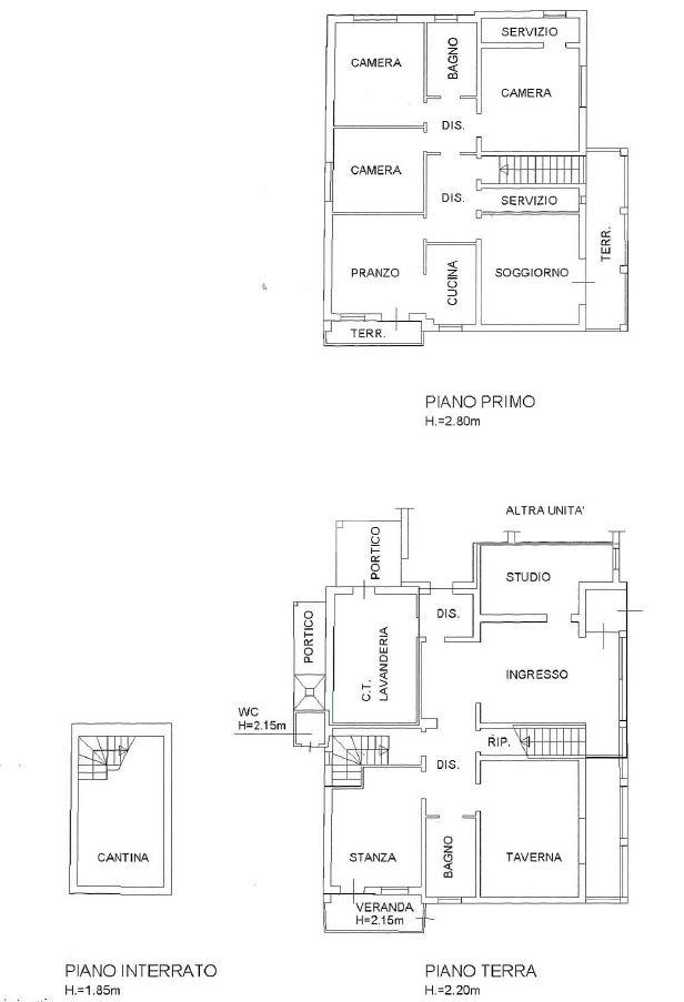
Immersa in un parco privato di circa 2.600 mq, questa elegante residenza si sviluppa su tre livelli per una superficie abitativa di 314 mq, completata da un garage di 53 mq. La villa è stata ristrutturata tra il 2010 e il 2012, con attenzione alla qualità dei materiali, al comfort abitativo e all’efficienza energetica.

Al piano terra, l’ingresso conduce a una luminosissima zona living, valorizzata da ampie vetrate che creano continuità tra interno ed esterno. La presenza di una stube e di un importante tavolo in legno conferisce calore e atmosfera esclusiva all’ambiente. La zona giorno comprende uno studio, una cucina principale e una seconda cucina giapponese teppanyaki, ideale per chi ama ricevere ospiti. Dal soggiorno si accede al portico privato, perfetto per pranzi all’aperto o momenti di relax immersi nel verde. Completano il piano un bagno di servizio, una lavanderia e il garage di 53 mq. Il piano primo ospita la zona notte, composta da quattro ampie camere da letto e due bagni eleganti, di cui uno dotato di doccia idromassaggio, per un’esperienza quotidiana di comfort e benessere. Al piano interrato si trovano una cantina vini e una palestra privata, con predisposizione per un ulteriore bagno, ideale per una futura area wellness. L’immobile dispone inoltre di impianto fotovoltaico da 13 kW, che garantisce efficienza energetica e riduzione dei costi di gestione. Una residenza di prestigio, pensata per chi desidera privacy, ampi spazi e comfort di alto livello, a pochi minuti dal centro storico di Asolo.

Chiama lo 0423 1859650
Oppure passa a trovarci in via Montello 6, Casella d’Asolo

Mostra tutto

Nelle vicinanze

Trasporto pubblico Trasporto pubblico
Trasporto pubblico
1,4 Km
Ricariche auto elettriche Ricariche auto elettriche
Sorelle Ramonda One'di Fonte
1,8 Km
Asolo Piazzale Ca'vescovo | EnelX
2,0 Km
Asolo Giorgione | Enelx
2,6 Km
Asolo Forestuzzo | EnelX
2,9 Km
Scuole Scuole
Scuole
620 m
Scuola primaria città d'Asolo
2,0 Km
Istituto comprensivo Asolo Torretti
2,2 Km
Scuole Elementari e Materne
2,5 Km
Scuola Primaria di Fonte
2,5 Km
Farmacia Farmacia
Farmacia Agostini
2,2 Km
Farmacia Tonini Sergio
2,3 Km
Erboristeria di Fonte
2,3 Km
Farmacia San Vito
2,5 Km
Parafarmacia-Sanitaria
2,5 Km
Ospedali Ospedali
Ospedale di Asolo - ULSS 2 Marca Trevigiana
2,8 Km
Supermercati Supermercati
Quali
670 m
Mega
1,6 Km
Conad
2,3 Km
Crai
2,5 Km
IN'S
2,6 Km
Negozi Negozi
Negozi
620 m
Spaccio Commerciale
1,2 Km
Oasi
1,3 Km
Sorelle Ramonda
1,8 Km
Lilliput
2,3 Km
Bar Bar
Break Coffee
1,2 Km
Bar
1,4 Km
Snack bar
1,7 Km
Monte Grappa
2,1 Km
Caffè Centrale
2,2 Km
Ristoranti Ristoranti
Ristorante Osteria in Contrada
1,3 Km
Wine Bar and Music Momà
1,4 Km
Trattoria Croce d'Oro
1,5 Km
Trattoria alla Fornace
1,7 Km
Al Marocco
2,0 Km
Mostra tutto

Caratteristiche

Rif.:
61155386
Piano:
2 di 3 (Piano terra con giardino)
Box:
1
Posti auto:
3
Terrazzi:
2
Camere da letto:
4
Mostra tutto
Prezzo Prezzo
€ 600.000
Rata mutuo Rata mutuo
€ 2.848 / mese
Spese annue Spese annue
€ 0
Proponi il tuo prezzoProponi il tuo prezzo

Classe Energetica

A4
A4
A4
A4
A4
A4
A4
A4
A4
EP globale non rinnovabile:
194.50 kW h/m² anno
EP globale rinnovabile:
194.50 kW h/m² anno
EP invernale del fabbricato:
EP estiva del fabbricato:
Anno di costruzione:
1970
Riscaldamento:
Autonomo
Tipo impianto:
A pavimento
Tipo alimentazione:
GPL

Ti interessa visionare l'immobile?

Fissa un appuntamento  Fissa un appuntamento

Richiedi informazioni

Clicca su Leggi per aprire l'informativa
* Questi campi sono obbligatori

Calcola il tuo mutuo

Semplice e senza impegno
Anticipo

( % )
Mutuo

( % )

pochi semplici passi

inserisci i tuoi dati
Questionario completato
Grazie per aver richiesto un appuntamento senza impegno con un nostro Consulente del Credito e Assicurativo.

Hai inserito correttamente tutti i dati necessari e a breve riceverai una e-mail con un link da convalidare per inviare i tuoi dati.
Affiliato
Studio Asolo Srl
Via Montello, 6 31011 Asolo (TV)

Il nostro staff


  • Andreanicole Bizzotto
    Affiliata

  • Edoardo Maria Cunzo
    Responsabile

  • Joslin Cassol
    Coordinatrice
Via Montello, 6 31011 Asolo (TV)
Zona: Asolo
Mostra su mappa
Orari: lunedì - venerdì 8.30/12.30 - 14.30/19.30. Sabato 8.30/12.30.
Affiliato
Studio Asolo Srl
Via Montello, 6 31011 Asolo (TV)

2026 Tecnocasa Franchising S.p.A. - P. IVA 08365160152 - Via Monte Bianco 60/A 20089 Rozzano (MI). Ogni agenzia ha un proprio titolare ed è autonoma. Privacy policy | Policy utilizzo | Cookie policy