Villa singola in vendita

Cavaso Del Tomba, Via caldoie
€ 370.000
Prezzo aggiornato
8 locali 8 locali
447 Mq 447 Mq
4 bagni 4 bagni

Villa singola in vendita

Cavaso Del Tomba, Via caldoie

Descrizione annuncio

CAVASO DEL TOMBA///NOSTRA ESCLUSIVA

Proponiamo in esclusiva a Cavaso del Tomba una villa singola di importanti dimensioni, con una superficie complessiva di circa 447 mq, completamente circondata da giardino privato.

L’immobile, costruito nel 1977, è attualmente suddiviso in due unità abitative, ma offre la possibilità di essere facilmente riconfigurato come unica abitazione, ideale per chi desidera una soluzione indipendente con ampi spazi.

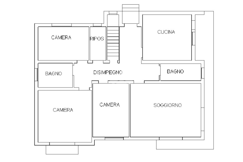
Il piano rialzato si sviluppa con cucina e soggiorno separati, tre camere da letto e due bagni. A completamento del piano è presente un garage di 49 mq.

L’abitazione è dotata di caldaia a gasolio con centrale termica dedicata ed è presente la predisposizione per stufe. L’accesso alla proprietà è garantito da ingresso pedonale e cancello carraio per l’accesso delle auto.

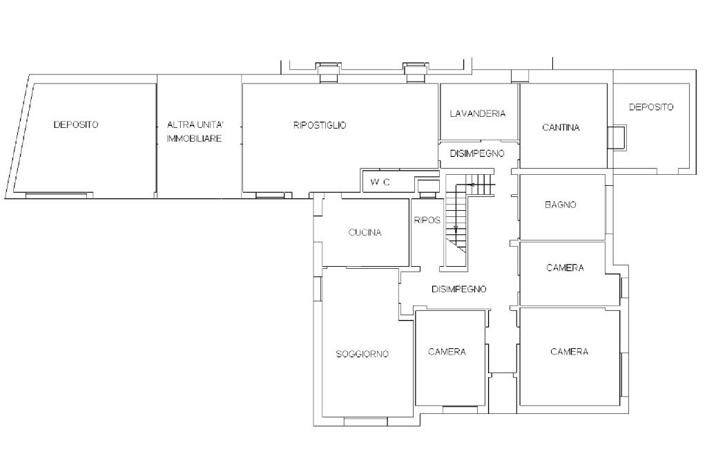
Il piano terra, di circa 293 mq, ospita una seconda unità abitativa composta da cucina e soggiorno in open space, tre camere da letto, due bagni, lavanderia, cantina, ripostiglio e deposito, oltre a un garage di 16 mq. Anche questo livello è dotato di centrale termica, stufa e termosifoni, assicurando comfort e autonomia.

Questa villa singola rappresenta una soluzione ideale per famiglie numerose, per chi necessita di due unità indipendenti, oppure per chi desidera una residenza unica con grandi spazi interni ed esterni, inserita in una zona tranquilla e residenziale di Cavaso del Tomba.

Per maggiori informazioni contattare al

328 9649086/04231855950

Mostra tutto

Nelle vicinanze

Trasporto pubblico Trasporto pubblico
Trasporto pubblico
2,8 Km
Scuole Scuole
Cavanis
1,4 Km
Scuole
1,7 Km
Scuole Elementari
1,9 Km
Farmacia Farmacia
Farmacia
900 m
Supermercati Supermercati
Crai
310 m
Bar Bar
Dersut
300 m
Alla Filanda
830 m
Canova
1,3 Km
Bar dello sport
1,4 Km
Bar
1,7 Km
Ristoranti Ristoranti
Agriturismo Bepi Cunial
940 m
Pizzeria Olimpic
1,1 Km
Da Rody - Ristorante Pizzeria
1,7 Km
Ristorante Pizzeria Olivi
2,0 Km
da Miet
2,4 Km
Mostra tutto

Caratteristiche

Rif.:
61166410
Piano:
1 di 1 (Piano terra con giardino)
Box:
2
Posti auto:
3
Terrazzi:
3
Camere da letto:
6
Mostra tutto
Prezzo Prezzo
€ 370.000
Rata mutuo Rata mutuo
€ 1.756 / mese
Spese annue Spese annue
€ 0
Proponi il tuo prezzoProponi il tuo prezzo

Classe Energetica

G
G
G
G
G
G
G
G
G
EP globale non rinnovabile:
0.00 kW h/m² anno
EP globale rinnovabile:
0.00 kW h/m² anno
EP invernale del fabbricato:
EP estiva del fabbricato:
Anno di costruzione:
1977
Riscaldamento:
Autonomo
Tipo impianto:
A radiatori
Tipo alimentazione:
Gasolio

Prezzo ridotto di €1 (4%%)

Ti interessa visionare l'immobile?

Fissa un appuntamento  Fissa un appuntamento

Richiedi informazioni

Clicca su Leggi per aprire l'informativa
* Questi campi sono obbligatori

Calcola il tuo mutuo

Semplice e senza impegno
Anticipo

( % )
Mutuo

( % )

pochi semplici passi

inserisci i tuoi dati
Questionario completato
Grazie per aver richiesto un appuntamento senza impegno con un nostro Consulente del Credito e Assicurativo.

Hai inserito correttamente tutti i dati necessari e a breve riceverai una e-mail con un link da convalidare per inviare i tuoi dati.
Affiliato
Studio Asolo Srl
Via Montello, 6 31011 Asolo (TV)

Il nostro staff


  • Andreanicole Bizzotto
    Affiliata

  • Edoardo Maria Cunzo
    Responsabile

  • Joslin Cassol
    Coordinatrice
Via Montello, 6 31011 Asolo (TV)
Zona: Asolo
Mostra su mappa
Orari: lunedì - venerdì 8.30/12.30 - 14.30/19.30. Sabato 8.30/12.30.
Affiliato
Studio Asolo Srl
Via Montello, 6 31011 Asolo (TV)

2026 Tecnocasa Franchising S.p.A. - P. IVA 08365160152 - Via Monte Bianco 60/A 20089 Rozzano (MI). Ogni agenzia ha un proprio titolare ed è autonoma. Privacy policy | Policy utilizzo | Cookie policy