Rustico in vendita

Fonte, Via Asolana - Onè
€ 330.000
Prezzo aggiornato
9 locali 9 locali
350 Mq 350 Mq
2 bagni 2 bagni

Rustico in vendita

Fonte, Via Asolana - Onè

Descrizione annuncio

Rustico storico dell’800 con ampio terreno privato

In contesto immerso nel verde proponiamo in vendita caratteristico rustico risalente al 1800, completamente da ristrutturare, circondato da circa 3.624 mq di terreno privato con cubatura di 5115 mq edificabile. Una proprietà ricca di fascino e storia, ideale per chi desidera realizzare una residenza di campagna, una dimora di charme oppure un progetto ricettivo come agriturismo o B&B.

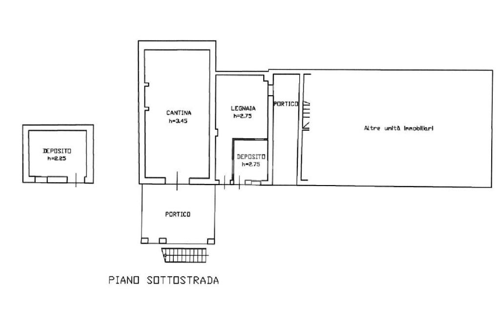
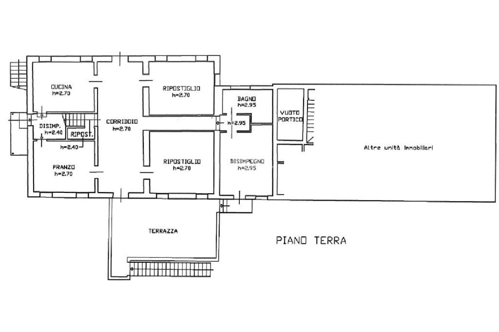
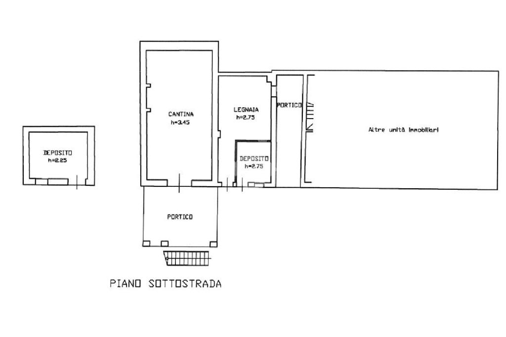
L’immobile si sviluppa su più livelli. Al piano sottostrada sono presenti deposito, cantina e legnaia. Il piano terra comprende disimpegno, bagno, due ripostigli, cucina separata e sala da pranzo. Al primo piano si trovano quattro camere da letto, un bagno e una terrazza. Il secondo piano ospita una soffitta.

La struttura tipica dei rustici dell’epoca, unita agli ampi spazi interni ed esterni, offre numerose possibilità di recupero e valorizzazione, permettendo di mantenere il carattere autentico dell’immobile e adattarlo alle esigenze moderne.

Soluzione ideale per chi cerca ampi spazi e un immobile dal grande potenziale da personalizzare.

Per maggiori informazioni o per fissare una visita contattare il numero 0423 1855950 oppure 327 4331915.

Mostra tutto

Nelle vicinanze

Trasporto pubblico Trasporto pubblico
Trasporto pubblico
510 m
Ricariche auto elettriche Ricariche auto elettriche
Sorelle Ramonda One'di Fonte
50 m
Asolo Piazzale Ca'vescovo | EnelX
2,6 Km
Scuole Scuole
Scuole
490 m
Scuola Primaria di Fonte
770 m
Istituto comprensivo di Fonte Scuole Medie
870 m
Centro formazione professionale Opera Montegrappa
2,0 Km
Scuola elementare Fonte Alto
2,1 Km
Farmacia Farmacia
Farmacia Agostini
500 m
Erboristeria di Fonte
660 m
Farmacia Tonini Sergio
2,9 Km
Supermercati Supermercati
Mega
280 m
Alì Aliper
1,3 Km
Quali
2,4 Km
Supermercati
2,5 Km
Conad
3,0 Km
Negozi Negozi
Sorelle Ramonda
70 m
Oasi
640 m
Lilliput
650 m
Jamaica
720 m
Panificio Cavasin
770 m
Bar Bar
Monte Grappa
370 m
Bar
560 m
Caffè Centrale
570 m
Myladi Snak Bar
650 m
Bar Amico
650 m
Ristoranti Ristoranti
Al Marocco
470 m
Ristorante Osteria in Contrada
690 m
Piper
1,4 Km
Prince Resort Asolo
1,4 Km
Trattoria alla Fornace
1,7 Km
Mostra tutto

Caratteristiche

Rif.:
61190027
Piano:
3 di 3 (Piano terra con giardino)
Posti auto:
3
Terrazzi:
2
Camere da letto:
4
Arredamento:
Assente
Mostra tutto
Prezzo Prezzo
€ 330.000
Rata mutuo Rata mutuo
€ 1.566 / mese
Spese annue Spese annue
€ 0
Proponi il tuo prezzoProponi il tuo prezzo

Classe Energetica

G
G
G
G
G
G
G
G
G
EP globale non rinnovabile:
0.00 kW h/m² anno
EP globale rinnovabile:
0.00 kW h/m² anno
EP invernale del fabbricato:
EP estiva del fabbricato:
Anno di costruzione:
1800
Riscaldamento:
Autonomo
Tipo impianto:
A radiatori
Tipo alimentazione:
Gasolio

Prezzo ridotto di €1 (14%%)

Ti interessa visionare l'immobile?

Fissa un appuntamento  Fissa un appuntamento

Richiedi informazioni

Clicca su Leggi per aprire l'informativa
* Questi campi sono obbligatori

Calcola il tuo mutuo

Semplice e senza impegno
Anticipo

( % )
Mutuo

( % )

pochi semplici passi

inserisci i tuoi dati
Questionario completato
Grazie per aver richiesto un appuntamento senza impegno con un nostro Consulente del Credito e Assicurativo.

Hai inserito correttamente tutti i dati necessari e a breve riceverai una e-mail con un link da convalidare per inviare i tuoi dati.
Affiliato
Studio Asolo Srl
Via Montello, 6 31011 Asolo (TV)

Il nostro staff


  • Andreanicole Bizzotto
    Affiliata

  • Edoardo Maria Cunzo
    Responsabile

  • Joslin Cassol
    Coordinatrice
Via Montello, 6 31011 Asolo (TV)
Zona: Asolo
Mostra su mappa
Orari: lunedì - venerdì 8.30/12.30 - 14.30/19.30. Sabato 8.30/12.30.
Affiliato
Studio Asolo Srl
Via Montello, 6 31011 Asolo (TV)

2026 Tecnocasa Franchising S.p.A. - P. IVA 08365160152 - Via Monte Bianco 60/A 20089 Rozzano (MI). Ogni agenzia ha un proprio titolare ed è autonoma. Privacy policy | Policy utilizzo | Cookie policy