Porzione di bifamiliare in vendita

San Zenone Degli Ezzelini, Via Valerio Giacobbo
€ 225.000
5 locali 5 locali
190 Mq 190 Mq
3 bagni 3 bagni

Porzione di bifamiliare in vendita

San Zenone Degli Ezzelini, Via Valerio Giacobbo

Descrizione annuncio

NOSTRA ESCLUSIVA – SAN ZENONE DEGLI EZZELINI

In una via chiusa e riservata, all’interno di una recente lottizzazione, proponiamo in vendita una porzione di bifamiliare caratterizzata da ampi spazi interni ed esterni.

L’immobile si trova attualmente allo stato grezzo, offrendo la possibilità di personalizzare gli ambienti interni secondo le proprie esigenze e il proprio gusto.

Un ampio giardino circonda la casa su tre lati, ideale per momenti di relax all’aperto o per gli amanti del giardinaggio.

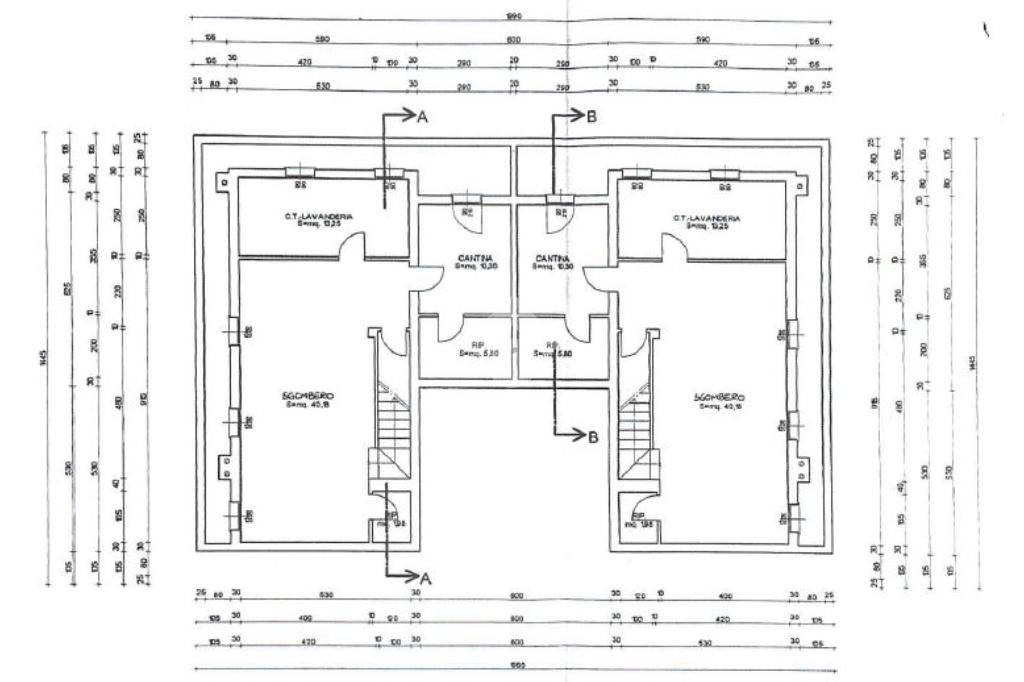
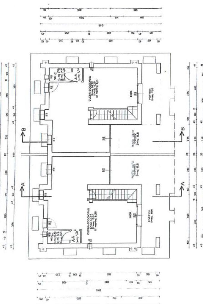
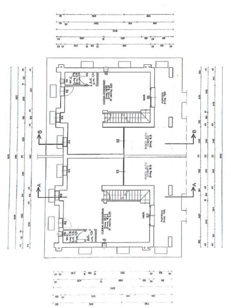
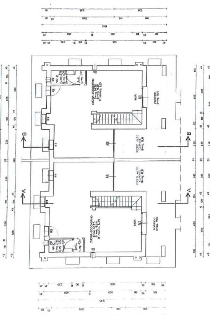
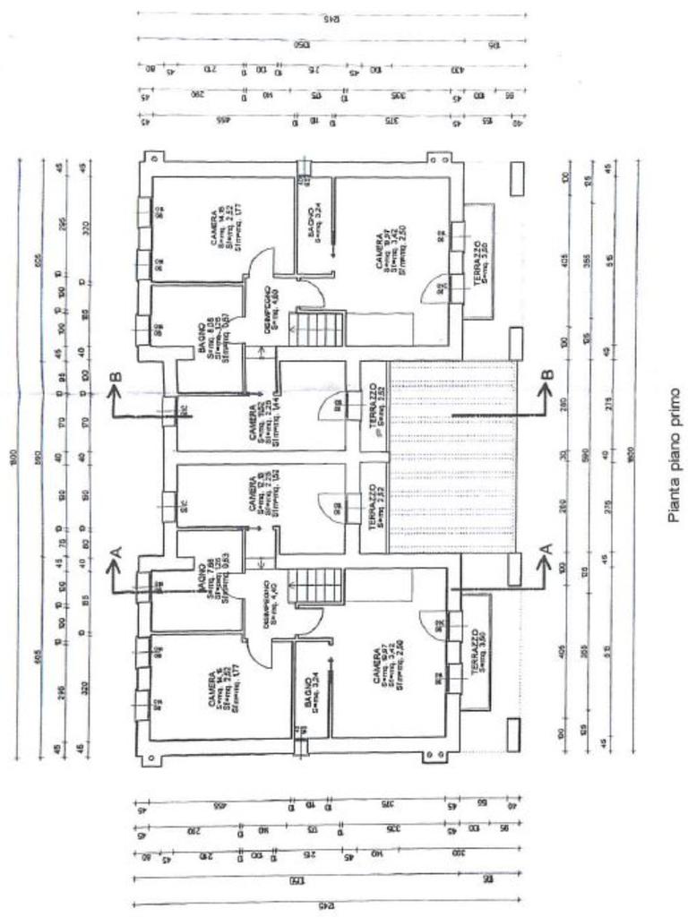
La distribuzione degli spazi è così prevista:

Piano terra di 60 mq: luminosa zona giorno con portico esposto a sud e bagno di servizio;

Piano primo: tre camere matrimoniali, di cui una con bagno privato e terrazzo, oltre a un secondo bagno;

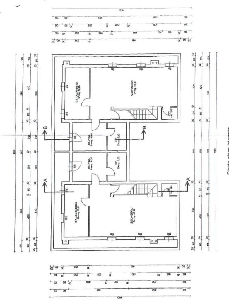
Piano interrato: ampio spazio personalizzabile, ripostiglio, cantina e comoda centrale termica/lavanderia.

Completano la proprietà, al piano terra esterno, un posto auto coperto privato, uno scoperto e il giardino esclusivo.

L’immobile è stato realizzato con criteri costruttivi ad alte prestazioni energetiche, dotato di cappotto esterno da 100 mm.

Il prezzo indicato comprende la consegna dell’immobile finito esternamente, con tinteggiature e rivestimento colonne (come la porzione adiacente).

Ma attenzione..possibilità di averla finita chiavi in mano! Contattaci per saperne di più!

Per maggiori informazioni contattare i numeri: 0423 1855950 – 327 4331915.

Mostra tutto

Nelle vicinanze

Trasporto pubblico Trasporto pubblico
Trasporto pubblico
750 m
Scuole Scuole
Istituto comprensivo San Zenone degli Ezzelini
640 m
Scuola Primaria di San Zenone degli Ezzelini Noé Bordignon
650 m
Scuola secondaria di I grado San Zenone
660 m
Scuole Materne
950 m
Scuola primaria di Cà Rainati Carlo Collodi
1,8 Km
Farmacia Farmacia
Farmacia Agostini
960 m
Farmacia Comunale Carinatese
1,7 Km
Erboristeria di Fonte
2,5 Km
Farmacia
2,9 Km
Supermercati Supermercati
Metà
820 m
Dpiú
1,7 Km
Alì Aliper
1,9 Km
Callegaro
2,8 Km
Negozi Negozi
Il Vecchio Forno
880 m
Eurospesa
1,9 Km
Caseificio Facchinello
2,1 Km
Panificio Cavasin
2,4 Km
Jamaica
2,4 Km
Bar Bar
Bar Centrale
810 m
Many' Caffè
820 m
Lunardon
870 m
Green Bar
970 m
Hb
1,1 Km
Ristoranti Ristoranti
Martini
160 m
Trattoria da Vincenzo
650 m
Pizzeria Cà Bembo
1,0 Km
Osteria da Pace
1,0 Km
Bar Ristorante da Baggio
1,0 Km
Mostra tutto

Caratteristiche

Rif.:
61153514
Piano:
3 di 3 (Piano su più livelli)
Box:
1
Posti auto:
1
Terrazzi:
1
Camere da letto:
3
Mostra tutto
Prezzo Prezzo
€ 225.000
Rata mutuo Rata mutuo
€ 1.044 / mese
Spese annue Spese annue
€ 0
Proponi il tuo prezzoProponi il tuo prezzo

Classe Energetica

A4
A4
A4
A4
A4
A4
A4
A4
A4
EP globale non rinnovabile:
194.50 kW h/m² anno
EP globale rinnovabile:
194.50 kW h/m² anno
EP invernale del fabbricato:
EP estiva del fabbricato:
Anno di costruzione:
2010
Riscaldamento:
Autonomo
Tipo impianto:
A pavimento
Tipo alimentazione:
Metano

Ti interessa visionare l'immobile?

Fissa un appuntamento  Fissa un appuntamento

Richiedi informazioni

Clicca su Leggi per aprire l'informativa
* Questi campi sono obbligatori

Calcola il tuo mutuo

Semplice e senza impegno
Anticipo

( % )
Mutuo

( % )

pochi semplici passi

inserisci i tuoi dati
Questionario completato
Grazie per aver richiesto un appuntamento senza impegno con un nostro Consulente del Credito e Assicurativo.

Hai inserito correttamente tutti i dati necessari e a breve riceverai una e-mail con un link da convalidare per inviare i tuoi dati.
Affiliato
Studio Asolo Srl
Via Montello, 6 31011 Asolo (TV)

Il nostro staff


  • Andreanicole Bizzotto
    Affiliata

  • Edoardo Maria Cunzo
    Responsabile

  • Joslin Cassol
    Coordinatrice
Via Montello, 6 31011 Asolo (TV)
Zona: Asolo
Mostra su mappa
Orari: lunedì - venerdì 8.30/12.30 - 14.30/19.30. Sabato 8.30/12.30.
Affiliato
Studio Asolo Srl
Via Montello, 6 31011 Asolo (TV)

2026 Tecnocasa Franchising S.p.A. - P. IVA 08365160152 - Via Monte Bianco 60/A 20089 Rozzano (MI). Ogni agenzia ha un proprio titolare ed è autonoma. Privacy policy | Policy utilizzo | Cookie policy